
Smart Brickell (Hotel / Residential)
UI/UX
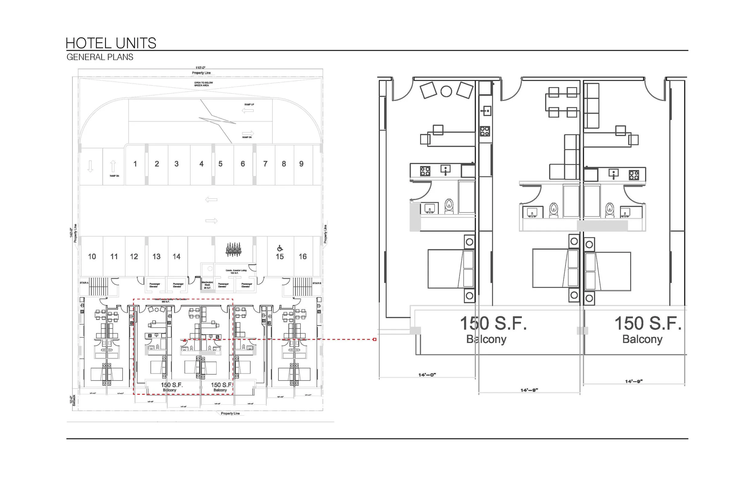
Smart Brickell was designed with a vision that separates it from the rest, it is truly pushing the boundaries of smart living. Condos that go beyond the norm, with these 3 key elements.
SMART ARCHITECTURAL UNIT DESIGN - SMART TECHNOLOGY FEATURES - SMART USE
At Arquitectonica Interiors, I explored the challenges to develop design solutions capable of addressing a bold and modern aesthetic while offering our clients two key features that align with the clients SMART philosophy. With Smartly furnished units, we keenly curated each unit to take full advantage of every square foot and to surpass the needs of today’s way of life.
SMART ARCHITECTURE - Space and size optimization. SMART INTERIOR DESIGN - All units include efficient furniture ideal for the space dimensions.
During this project I used my skills as a space planner and architectural designer to create quick visualizations of the interior spaces within the tower for the future new three Habitat towers.